1892 Key West Jail

Key West Courthouse and Key West Jail in 1908

TAKE A STEP BACK IN TIME

1892 KEY WEST JAIL RESTORATION MUSEUM PROJECT TO START IN EARLY 2020

Monroe County Project Management will start the restoration of the 1892 Key West Jail in early 2020. The first phase includes roof replacement, door and window restoration, and spalling repairs. In the second phase, non-historic features of the building will be removed and fire protection, required ADA access, restrooms, and museum facilities will be added. The tentative opening date is summer 2021.

A small section of the original 1892 building and the entire 1910 addition remain. The goal of the project is to save the original structure and remodel a portion of the building to operate as a museum.

“This project will be a celebration of law enforcement and the Florida Keys’ unique history with the early jail system,” said Cary Knight, Director of Project Management. “There has been a considerable amount of research to make it a historical experience for our residents and visitors to Key West.”

Earlier this year the Key West Art and Historical Society (KWAHS) submitted a proposal to operate and maintain the museum that was accepted by the Board of County Commissioners. The KWAHS also manages the County-owned Fort East Martello and the Key West Lighthouse.

“This has been a long effort to preserve this special piece of Monroe County history,” said Michael Gieda, Executive Director of KWAHS. “This partnership with the County has been a win-win for historic preservation and education.”

Monroe County commissioned a full historical structure report with a Historic Preservation Grant in 2018. The project will be funded through a Tourist Development Council’s bricks and mortar grant and a Florida Division of Historic Resources special category grant.

Historic Jail Siteplan

The History of the Key West Jail

The 1892 jail had been specifically designed to mimic the Monroe County Courthouse, built just two years earlier. Both the jail and courthouse were considered impressive civic accomplishments, and symbols of Monroe County’s position as the most populous city in Florida at that time with the U.S. Census showing more than 18,000 citizens in Key West.

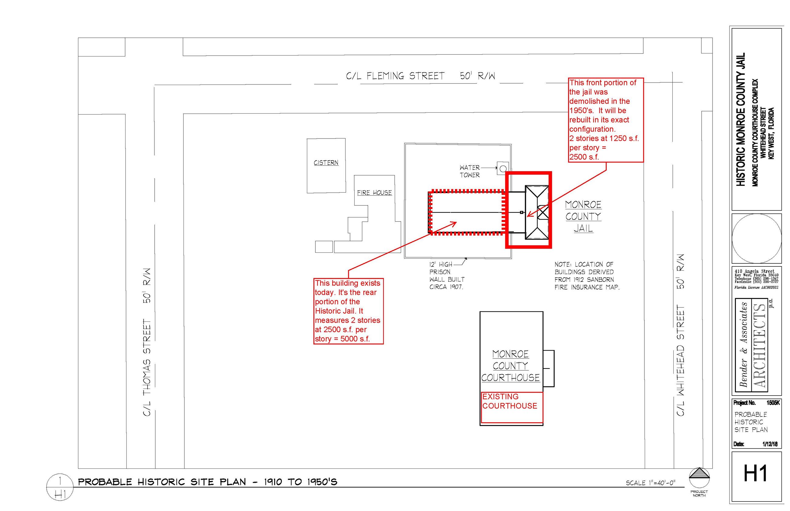
The 1892 jail was the fifth jail built at the historic Jackson Square. In 1907, a 10-foot high concrete wall was built around the jail and in 1910 the jail was expanded to increase capacity with a two-story concrete cell block.

In 1952, the front of the old jail was demolished and replaced with a new jail and office for the Monroe County Sheriff. In 1965, the sheriff’s office was replaced with a courthouse annex. This annex was expanded in the 1980s. At that time, the north section of the 1907 wall was removed. Today, only the rear portion of the 1892 building remains, along with the entire 1910 addition and the 1910 cell block.

Aerial view of the Key West Courthouse and Key West Jail

Old Key West Jail Photos

The Monroe County Public Library has a collection of photos from the old Key West Jail throughout the years via its Flickr account.